Language

Home > Products > Screening>Auto Centering Vibrating Screen



Auto Centering Vibrating Screen

Auto Centering Vibrating Screen
Product Introduction
A traditional and widely using vibrating screen
Capacity
20~300t/h
Product Improvements
Elastic location limit part is made of Xinhai wear-resistant rubber
Adopting the new patent technology: a seat type vibrating screen lifting device, Patent No. 201120562516.7

Advantages

 Auto centering vibrating screen

  • Large amplitude, high screening efficiency

  • Xinhai wear-resistant screen mesh, the service life is 3-10 times longer than steel’s, and 2 times than PU’s

  • Long service life, low noise and convenient maintenance

  • The two types of vibrating screen, seat type and hanging type

Working Feature

 Auto centering vibrating screen

Auto centering vibrating screen is driven by the vibrator with eccentric device

The characteristics of the vibrating screen as follow:

  • The materials on screen achieve loosing and stratification

  • The counterweight of vibrating screen can be adjusted, and the screen amplitude can be adjusted according to the production requirement

  • The feeding changes, the amplitude changes. Small feeding brings severe amplitude and vibration; much feeding brings smaller amplitude. Change of feeding will affect the "dynamic balance", and the belt pulley center had some vibration;

  • It is suitable for screening medium and fine particle rather than coarse materials.

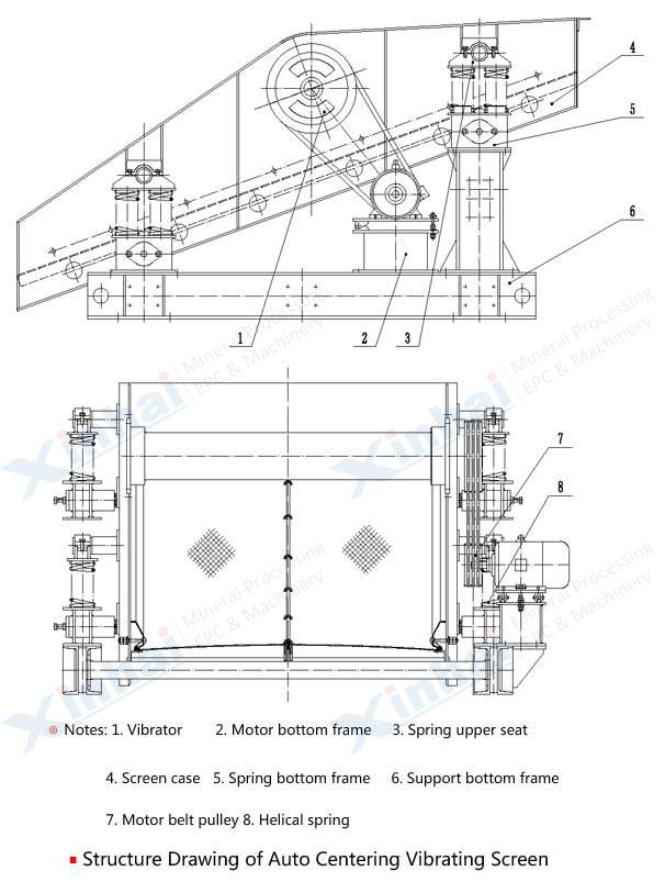
Product Structure

Auto Centering Vibrating Screen

Application

  Auto centering vibrating screen

The application range of auto centering vibrating screen: mines, coal, metallurgy, construction materials, chemistry industry

Technical Parameters

Model Spec. Max. Feed Size (mm) Capacity
(t/h)
Motor Model Motor Power
(kW)
Weight
(kg)
Remarks
SZZ0918 900 X1800 40 20 ~25 Y100L1-4 2.2 420 Hanged
SZZ0918 10 ~30 553 Pedestal
2SZZ0918 20 ~40 570 Pedestal
SZZ1225 1250X2500 100 100 Y132S-4 5.5 1017 Hanged
SZZ1225 100 1466 Pedestal
2SZZ1225 100~150 1320 Hanged
2SZZ1225 100~150 1870 Pedestal
SZZ1530 1500X3000 90~200 Y132M-4 7.5 1850 Hanged
SZZ1530 2665 Pedestal
2SZZ1530 2963 Hanged
SZZ1540 1500X4000 100 90~200 Y160L-4 15 2865 Pedestal
2SZZ1540 1500X4000 400 90~200 Y160L-4 15 3412 Pedestal
SZZ1836 1800X3600 150 100~300 Y160M-4 11 4500 Hanged
2SZZ1836 Y180M-4 18.5 5616 Pedestal

Related Articles



Related Products

Linear Vibrating Screen | Auto Centering Vibrating Screen | Round Vibrating Screen(YA) |

Mineral Processing
EPC and Equipment

Tel: +8613683147042
E-mail: xhxu@xinhaimining.net
Support: 北京鑫互联科技有限公司

Home About us EPC Products Solutions Cases News Contact Us 3D Exhibition Room
sitemap   © 2014 Shandong Xinhai Mining Technology & Equipment Inc.

Leave Message
contact
Leave Message
contact